Brilliaタワー東京2901号室

東京を一望できる、解放感のある空間

施工内容

工事期間 2025年1月20日~2025年4月15日
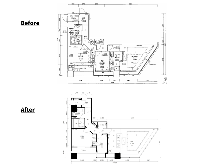
工事区分 フルリノベーション
工事内容 フローリング貼替、建具間仕切、天井新規、住宅設備新規、電気設備工事、床タイル工事、間接照明造作、配管切り回し、天カセ設置、床暖房敷設、浴室乾燥機、追い炊き付き

概算費用

1500万円~1550万円

白を基調とした落ち着きのある空間に仕上げたリノベーション事例です。タイルや間接照明で高級感をプラスしました。中心には開放的なアイランドキッチンを配置し、家族やゲストとの会話を楽しめる心地よい空間を演出。天井に施した間接照明が柔らかな陰影をつくり、時間帯によって異なる表情を楽しめます。リビングの大きな窓からはスカイツリーを望むことができ、日中は爽やかな開放感、夜にはきらめく夜景を楽しめる贅沢な住まいに。上質さと居心地の良さを両立した、都市型リノベーションの好例です。

物件概要

物件名 Brilliaタワー東京
専有面積 78.51㎡
間取り 2LDK+S
建物構造 鉄筋コンクリート造 地上45階建地下2階塔屋1階建
竣工年 2006年6月

 

PAGE TOP