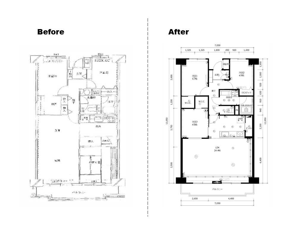
和室から現代風に生まれ変わったLDK
950万円~1000万円
もともと和室だった空間を、現代のライフスタイルに合わせてリノベーションした事例です。LDKと洋室の間には室内窓を設け、開放的な設計に。ガラス越しにお子さまの様子を見守ることができ、安心感とデザイン性を両立しています。リビングの天井にはアクセントクロスと間接照明を施し、上品で落ち着いた雰囲気を演出。和室の面影を感じさせないモダンな仕上がりで、空間全体がすっきりと統一された印象に。暮らしのスタイルに合わせて住まいの価値を高めた、こだわりのリノベーションです。